Скачать AvisБТИ (рос.версия)

AvisБТИ (рос.версия)

Версия:1.5.210100
Лицензия: 2000 руб.
3107 скачиваний
Проверено на вирусы
?
Проверено на virustotal
Версия
1.5.210100
Обновлено
Совместимость
Windows 98, Windows 2000, Windows XP, Windows 2003, Windows 2008, Windows 7, Windows 8, Windows 10
Размер
39.4 МБ
Архитектура
32 и 64 бит
Язык
Русский
Разработчик
Stargis
Сайт
www.stargis.com.ua

Описание

AvisБТИ (рос.версия) – это новый удобный графический редактор для технической инвентаризации объектов недвижимости по доступной цене. Программа создана специально для кадастровых инженеров и проектировщиков.

Основные решаемые задачи

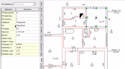
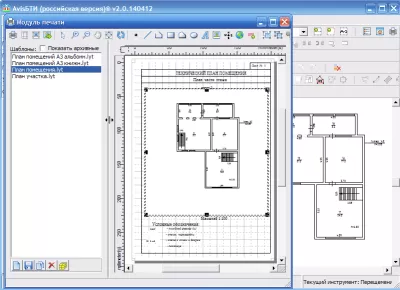
  • подготовка и печать поэтажных планов,
  • создание экспликации, благоустройства и состава объекта для любых типов объектов,
  • формирование техпаспорта на квартиры, индивидуальные жилые дома, нежилые здания, линейные объекты,
  • черчение межевого плана и инженерных сетей,
  • экспорт планов в графические редакторы и Mapinfo.

Подробнее про возможности

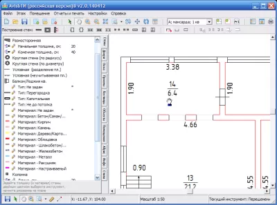
  1. Программа объединяет в себе чертежную и геоинформационную систему;
  2. Автоматизированное построение стен, со встраиванием проемов и размещением элементов интерьера;
  3. Распознавание контуров комнат, формул, площадей и промеров;
  4. Подготовка экспликации поэтажного плана;
  5. Черчение в условных знаках межевого плана и инженерных сетей;
  6. Наличие настраиваемых библиотек конструктивных элементов и стилей;
  7. Решения геодезических задач и операции проектирования;
  8. Совместимость с Mapinfo TAB, Autocad DXF (импорт/экспорт);
  9. Использование подложки при векторизации;
  10. Печать планов любой сложности;
  11. Соответствие отчетов российскому законодательству;
  12. Наличие обучающих материалов, видео-уроков и примеров.

С AvisБТИ вам не нужно долго разбираться и переучиваться. Создавайте качественные техпаспорта просто и быстро. Демо-версия программы без ограничений за 30 дней.

Stargis

Официальный представитель

Все приложения (3)

Рейтинг

5
2 оценки
Нажмите, для быстрой оценки

Оставить отзыв

Ваше имя*
Ваш email*
Комментарий*

Отзывы

photo
9 часов назад
Макс
Скачивайте только с оригинальных источников. На этом сайте полно вирусов. Вот ссылка на официальную страницу загрузки этого приложение https://download-installer.com
0
0
photo
7 лет назад
Надя
Пользуюсь программой больше года, рисовать планы действительно просто и удобно, разобралась быстро. Были вопросы - техподдержка помогла, еще и обновления бесплатны. Рекомендую![:+5:]
1
0