Скачать AvisБТИ (укр.версия)

AvisБТИ (укр.версия)

Версия:1.5.210100
Лицензия: 1000 грн.
1816 скачиваний
Проверено на вирусы
?
Проверено на virustotal
Версия
1.5.210100
Обновлено
Совместимость
Windows 98, Windows 2000, Windows XP, Windows 2003, Windows Vista, Windows 2008, Windows 7, Windows 8, Windows 10
Размер
40.66 МБ
Архитектура
32 и 64 бит
Язык
Русский
Разработчик
Stargis
Сайт
www.stargis.com.ua

Описание

AvisБТИ (укр.версия) – это лучшее решение для БТИ, позволяющее удобно и быстро сформировать поэтажные и ситуационные планы, автоматически подготовить документацию по технической инвентаризации объектов недвижимости.

Быстро, правильно и просто создать технический паспорт по любому объекту недвижимости – основная цель программы. Построения делаются очень просто, вы потратите минимальное время на освоение программы, имея при этом весь набор необходимых и привычных инструментов! Нарисовав поэтажный план и схему участка, вы автоматически получаете готовые заполненные ведомости и журналы, полностью соответствующие нынешнему украинскому законодательству.

Основные возможности программы

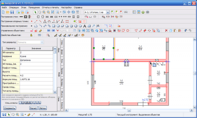
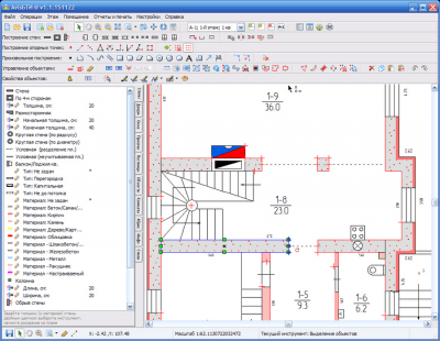
  • Создание поэтажных планов любых объектов недвижимости (жилые дома, садовые домики, квартиры, нежилые помещения и здания, общественные здания, промышленные здания и площадки, многоэтажные дома, гаражи, укрытия).
  • Создание схемы земельного участка условными знаками 1:500 масштаба.
  • Построение с помощью привычных конструкций: стены, двери, окна и др.
  • Построение с помощью базовых фигур при необходимости.
  • Режимы построений: визуальное на плане или путем точных замеров.
  • Векторизация подложки.
  • Автоматическое распознавание помещений, промеров, формул площадей.
  • Создание меток и подписей к объектам.
  • Печать поэтажных планов и схем любых форматов (до А0).
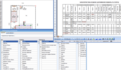
  • Формирование всего набора отчетов (на выдачу и инв.дело) в соответствии с украинским законодательством.
  • Импорт проектов и планов, подготовленных в других чертежных программах (Автокад, Мапинфо, IN4/XML).
  • Импорт сканированных изображений для использования в качестве подложки.
  • Готовая библиотека объектов построения (стены, двери, окна, колонны, сантехника, вентиляция, проемы, лестницы, лифты и т.д.)
  • Библиотека условных знаков 1:500 масштаба
  • Библиотека материалов зданий и сооружений
  • Демо версия программы без ограничений на 30 дней!

Минимальное время на освоение программы. Удобные и привычные инструменты проектирования. Библиотеки объектов. Полный набор отчетов в соответствии с законами Украины. Совместимость с другими программами.

Бесплатная активация на сайте компании или по емайл.

Stargis

Официальный представитель

Все приложения (3)

Рейтинг

3.3
10 оценок
Нажмите, для быстрой оценки

Оставить отзыв

Ваше имя*
Ваш email*
Комментарий*

Отзывы

photo
10 лет назад
Галина
Пользовалась программой БТИ (укр.)Могу сказать , что понравилось: экономиться много времени на нудную работу заполнять таблицы занимает малый обьем, в отличии от других графических программ Работа в программе творческая.советую своим коллегам.Я бы хотела, чтобы разработчики подумали создать приложение для андроида.
0
0